Wir schaffen Räume, die wirken.
Jedes Projekt ist einzigartig – aber eines haben alle gemeinsam:
den Anspruch, mehr zu sein als nur gebaut.
Jedes Projekt ist einzigartig – aber eines haben alle gemeinsam: den Anspruch, mehr zu sein als nur gebaut.
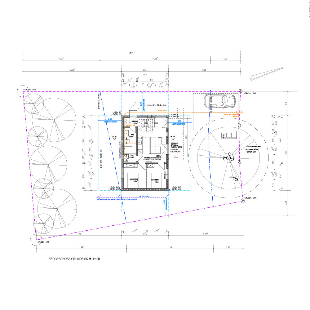
Neubau eines Ferienhauses
Konzept & Planung
Das Wohnhaus ist ein Neubau in Holzrahmenbauweise. Es wurde 2024 durch die Skizze24 geplant und daraufhin baulich fertiggestellt.
Das Ferienhaus liegt am Salzhaff und ist durch seine schlichte Architektur minimalistisch und zeitlos.
Leistungen: Kauf, Planung, Generalunternehmer, Nutzung Ferienvermietung
Status: abgeschlossen
Wohn- & Geschäftshaus
Denkmalgerechte Sanierung
Das Baudenkmal wurde 2022/2023 umfassend denkmalrechtlich saniert.
Das Wohn- und Geschäftshaus wurde um zwei Maisonette-Wohnungen erweitert und das Hofhaus wurde wieder hergerichtet.
Leistungen: Bestandsaufnahme, Ausführungsplanung, Abgeschlossenheitsbescheinigung, Entwässerungsantrag, Bauleitung
Status: abgeschlossen
Mercedes-Benz AG
Niederlassung Lübeck
Mercedes-Benz AG
Niederlassung Lübeck
Fassadensanierung
Im Rahmen von Instandhaltungsmaßnahmen und der Grundstückspflege wird der Standort regelmäßig den aktuellen Bedürfnissen angepasst, um moderne Progressivität zu transportieren.
Leistungen: Planung und Ausführungsbetreuung der Fassadensanierung
Status: abgeschlossen
Uniklinik Schleswig Holstein
Uniklinik
Schleswig Holstein
Brandschutz-Sanierungen und Instandhaltungsmaßnahmen
Brandschutz-Sanierungen und Instandhaltungs- maßnahmen
Im Universitätsklinikum Schleswig-Holstein, werden während des laufenden Betriebes diverse Brandschutzertüchtigungen zur Instandhaltung des Gebäudebestands durchgeführt.
Diese Sanierungen umfassen beispielsweise Deckensanierung mit Umbauten, der in den Decken liegenden TGA, sowie der Austausch von Brandschutztüren und die Erweiterung von Brandmeldeanlagen, etc.
Bauherr: Uniklinikum Schleswig-Holstein
Auftraggeber: Facility Management Schleswig-Holstein GmbH
Aufgabe: Grundlagenermittlung, begleitende Ausführungsplanung, Ausschreibung und Vergabe, Bauleitung, Projektleitung
Status: laufend
Ärztehaus
Instandhaltungsmaßnahmen
Instandhaltungs-
maßnahmen
Im Lebenszyklus eines Gebäudes stehen regelmäßig Änderungen und Modernisierungen an. Betreuungen rund um das Gebäude und seine aktuellen Bedürfnisse, sowie die Pflege der Bestandsakten sind eine wichtige Aufgabe in der Zusammenarbeit mit den Eigentümern.
Auftraggeber: Privater Bauherr
Leistungen: Umnutzungen eines Ärztehauses zu
einem Wohn- und Geschäftshaus
Status: laufend
CityBox 24
Konzepte, Planungen & Entwürfe
Konzepte,
Planungen & Entwürfe
Die Assistenz des Auftraggebers in allen Planungsphasen ist ein umfassender Teil der Arbeit an einem Gebäude. Vorbereitungen für Termine, Vorentwürfe für die Mietinteressenten, Vorstellung neuer Konzepte: City Box 24 deckt den Bedarf seiner Kunden überregional mit modernen Lagerflächen.
Auftraggeber: City Box 24 GmbH
Leistungen: Zeichenleistungen, Fassadenentwürfe, Entwurf, Mietereinrichtungsplanung
Status: laufend
Wohnquartier in Lübeck
Wohnquartier
in Lübeck
Projektentwicklung
In Planung ist die Grundstückentwicklung zur Bebaubarkeit von einem Wassergrundstück mit drei Mehrfamilienwohnhäusern. Entstehen sollen nachhaltige Flachdachgebäude mit besonderer Energieeffizienz, Staffelgeschossen und Dachterrassen. Der Flächenverbrauch soll optimiert werden und der Baumerhalt des Bestandsgartens soll angestrebt werden.
Status: laufend
Mehrfamilienhaus in Lübeck
Mehrfamilienhaus
in Lübeck
Energetische Sanierung
Energetische Sanierung
Auch unsere Bestände können sich an aktuelle Anforderungen anpassen. In Norddeutschland ist die Regenwahrscheinlichkeit hoch und die Kälte im Winter ein ständiger Begleiter, der sich auf die Substanz der Bestände auswirkt. Die Verbesserung der Energieeffizienz ist sinnvoll und kann dem Gebäude in Form einer ganzheitlichen Fassadensanierung ein neues Antlitz verleihen.
Auftraggeber: Privater Bauherr
Aufgabe: Fassadensanierung, Instandhaltung und Mieterausbau
Status: abgeschlossen
Einfamilienhaus mit Wasserblick
Neubau
Neubau
Das Einfamilienwohnhaus im Loft-Stil bietet offene Räume und fließende Ebenen. Als klimafreundlicher Neubau im KfW40-Standard versorgt es sich dank Photovoltaik, Luft-Wasser-Wärmepumpe und Energiespeicher effizient selbst. Holzständerwerk und Lüftungsanlage sorgen für Wärme und gute Raumluft. Auf ca. 150 m² Wohnfläche plus 50 m² Nutzfläche in der Garage verbindet das Haus moderne Technik mit intelligenter Hausautomation.
Auftraggeber: Privater Bauherr
Leistungen: Kaufabwicklung, General-Planung, Bauausführung und Verwaltung
Status: in Nutzung
Ihre Idee. Unsere Planung. Gemeinsam realisiert.
Ihre Idee.
Unsere Planung.
Gemeinsam realisiert.
Skizze24 GmbH ist Ihr Ansprechpartner, wenn es nicht 08/15 sein darf
sondern durchdacht, genehmigungsfähig und baureif.
Skizze24 GmbH ist Ihr Ansprechpartner,
wenn es nicht 08/15 sein darf sondern
durchdacht, genehmigungsfähig
und baureif.


















































